京都市山科区I様邸浴室改修工事~いっきに解体から完成までご紹介します~
京都市山科区I様邸の浴室改修工事が始まりました。ブログを書くのにもたもたしている間に工事が完了してしまいました![]()
ですのでいっきにご紹介します![]()
以前はこのような風呂でした![]()

タイルのひび割れがでていました。タイルのお風呂のひび割れはとても深刻です。このひび割れからお風呂の水が漏れ、
壁の中で湿気が起こり、その湿気が外部に出ようとして外壁じたいがはがれてしまいます。この症状はタイル風呂のお家であれば
どのお家にもありうることです。タイルの風呂はユニットバスに変えなければいけません。
さてI様邸は解体から始まります。

壁・床・天井すべて解体していきます![]()

タイル風呂の床は土です。土間にはなっていません。土では湿気も上がってきますし、ユニットバスは
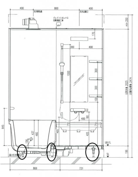
箱を4本の足でもたせています。その足が安定するように土間コンクリートを打ちます。

上の図面の丸印のところが足ですね。この足が安定するように、下には土間コンクリートが必要なんです。
土間コンクリートをうって、配管工事、電気工事をしこみ、組立をして完成となります。

ユニットバスはLIXILのリノビオVという商品です。アクセントの色は『トバーズブルー』を選びました!落ち着いた青色ですね!
浴槽横や浴槽の後ろ、鏡の横にも手摺を取付けています。

こちらは洗面室のクロスです。明るい洗面室にしたいというご希望で選ばれました!お風呂のアクセントの色ともマッチしたおしゃれなクロスです!
              
              
              0120-35-6406 受付時間10:00~17:30 (土祝可)
      
      
      
      
      
							
							
					
					
					
					
					
					
					
					
					




